-
- Tổng tiền thanh toán:
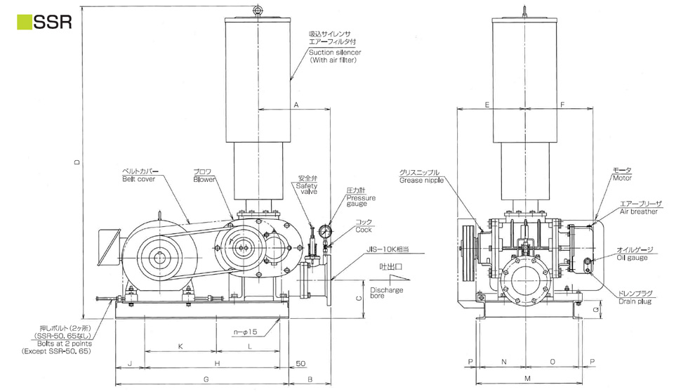
Máy thổi khí Shinmaywa ARH
Đặc tính kỹ thuật
- Rotor được thiết kế 3 thùy.
- Hiệu suất hoạt động ổn định, độ bền cao
- Độ rung và độ ồn thấp.
- Tiêu thụ ít năng lượng.
- Thiết kế gọn để tiết kiệm khônggian và thuận lợi trong bảo dưỡng thiết bị
- Công suất động cơ: 0.5 đến 700 HP
- Lưu lượng: 0,5 - 360 m3/phút
- Dải dung tích, áp lực, và côngsuất rộng
- Đường kính: 40 mm đến 400 mm(1.5" - 16")
- Áp lực hệ thống: 1000 - 8000mmAq Khí

( 3 Thùy )
Dòng máy thổi khí shinmaywa ARH tốc độ thấp được nghiên cứu phát triển và sản xuất sử dụng công nghệ triệt tiêu âm thanh bằng cách sử dụng rotor dạng xoắn ốc (Helical Rotor Blower). Máy hoạt động tại tốc độ thấp và kết hợp thêm thiết kế đặc biệt cho các bánh răng truyền động làm tăng hiệu quả giảm âm, cải thiện cường độ tiếng ồn phát ra.

Ứng dụng:
– Khuấy trộn bể điều hòa trong hệ thống xử lý nước thải giúp trộn đều nước thải và ngăn ngừa phân hủy kị khí.
– Cung cấp khí cho vi sinh tồn tại và phát triển trong bể hiếu khí.
– Cung cấp khí oxygen trong quá trình nuôi trồng thủy hải sản.
– Vận chuyển khí nén.

Cung cấp bao gồm:
– 1 bộ gồm đầu thổi khí, inlet silencer, check valve,safety valve do chính hãng ShinMaywa sản xuất
– Bộ chân đế, pully, V-belt, belt cover do chính hãng ShinMaywa sản xuất
– Cung cấp bao gồm giá đỡ đồng hồ áp suất ( sản xuất tại Việt Nam )

Phần chọn thêm:
– Ống giảm thanh lắp vào máy (Sản xuất tại Việt Nam)
– Khớp nối mềm lắp vào máy (Sản xuất Tại Việt Nam)
– Đệm cao su (Sản xuất Tại Việt Nam)
Bài viết liên quan: